![]() |
|
Commission 3 - WG 3.1 |
|
4-7 October 2000 | |
|
||
|
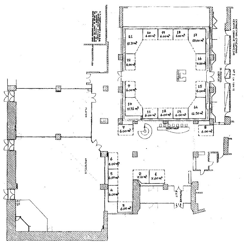
Fig.1: Layout of the Training & Conference Centre's Groundfloor |
Technical Exhibition Information The Workshop will take place in the "Aristotle" Conference Hall (415 sq.m.). The Technical Exhibition will
take place in both the Entrance Hall (stands 1-8) and the Restaurant (stands
9-22) from October 4th - 6th. The area of the stands varies
from 6 sq.m to 13 sq.m as shown in Fig.2, but adjoining stands can be
connected. The price of each stand is estimated according to its size. The priority principle, according
to the time of the Application Form submission,
will be followed for the reservation of the exhibition stands.
|
|
Fig.2: Technical Exhibition stands layout |
| Best viewed in 1024 x 768 pixels | Last updated: 3/5/2000 |